
The Ardagh Chalice
26 Minute Read
Ardagh now is scarcely more than a place-name; it is in County Limerick in Ireland. In 1868, while a peasant was digging potatoes he found at a depth of three feet some bronze objects and a silver chalice. These objects were taken to the convent at Limerick, where they were examined by the Bishop and by Lord Dunraven, an amateur antiquarian.
Later, these objects passed to the Royal Irish Academy in Dublin. There they were cleaned and the chalice (shown above) examined by a jeweler named Johnson. Johnson's report on it was incorporated into the report that Dunraven published in 1874. Illustrations for his paper were drawn by Margaret Stokes, a writer on the antiquities of this period, who used photographs as the basis for her drawings. Her photograph album, recently discovered through the exertions of Etienne Rhynne, staff member at Dublin who went to London on occasion to consult during the work, helped solve a problem that had arisen from observations made in the course of the examination.
In June 1961, the chalice was taken to the Research Laboratory of the British Museum for repair because it had become loose at the joint between bowl and foot. This necessary work was also to provide a convenient occasion to study the chalice. The following account itemizes some of the complexities encountered and gives an insight into the problems that can arise in a museum laboratory.
Objectives and Examination The objectives of treatment were as follows; first, to secure the loose neck; second, to check the accuracy of Dunraven's account and especially to confirm the existence of an iron bolt which Dunraven wrote "holds all together"; third, to determine the nature of the various material employed. According to Dunraven's account there were 354 parts to the chalice which was made in about 800 AD.
As a preliminary, examination was directed toward discovering how the chalice was constructed. An initial photograph of the bottom of the chalice suggested the presence of metal foil under the central crystal that is on the underside of the foot. It was deduced that if present the foil was perforated. Perforation could have occurred at some earlier examination as a result of the central crystal dome having been rotated carelessly in its mount against some sharp metal object lying beneath the foil.
The next stage of examination was to touch the underfoot disc, the component decorated with the five small circular studs, and to attempt to rotate it gently. The disc could rotate only through a small angle. From this it was deduced that the disc was mounted loosely upon a square bolt, or at least upon a bolt whose end was not circular in cross section. The parts were next separated; first, the crystal was eased from its mount. Then the whole of the mount was lifted away from the under-foot disc. This then revealed inside the foot-cone the expected square bolt. It also revealed two sharp tags projecting from the end of the bolt. The earlier deductions now stood confirmed: here were the sharp projections that had torn the silver foil and also the square bolt.
The next stage of exploration was to lift away the foot-cone. This revealed the lower of the three rings of the neck assembly and also exposed a mass of lead that locked the bolt into the central ring of the neck.
At this point, it was believed that the lead in the neck has been inserted by Johnson and that it could therefore be removed if need be because it was not original. In fact it was shown later to have been original, but removal now was essential, whatever its origin, because it was endangering the stability of the chalice: the lead had corroded and had been forcing the foot away from the bowl. This turned out to have been the source of weakness in the neck that had initiated the work.
The lead was removed very carefully. Looking at the inside of the neck it may be noted that the lead that had lain against the silver bowl is white with corrosion products. Circular turning-marks in these suggest that a lathe had been used.
The two handles of the chalice were secured to the bowl by two rivets at the top and two rivets at the bottom that are covered by small glass studs. The handle shape suggests a curved sheet of silver having flanges, serving as stiffeners, attached to both sides. It was a question whether the handles had been cast in one piece or whether parts had been soldered together. This question could have been answered by making a metallographic cross section in some portion but removal for such a purpose was not permissible.
Examination of the surface of one handle under a microscope suggested that the handles had been cast. This impression was confirmed by an examination of the curvature of the C-shaped flanges on the sides. It can be seen that the "C" is not part of a circle—its radius of curvature varies from point to point. This was quite an important observation because if the handle is not circular, with a readily repeatable curvature, then there is a strong probability that one side of the handle will have a slightly different curvature from the other.
To investigate this probability a very careful transfer was made of the curvature of the flange. This was done by placing a transparent sheet of "Kodatrace" backed with carbon paper against the flange and then rubbing the Kodatrace in the region of the metal edge through a plane at constant inclination. By this means the line of the edge was transferred through the carbon paper to the Kodatrace.
The trace was then laid against the other parallel flange of the same handle and it was observed that the two curvatures were different. In other words, the handle was asymmetric. By comparing tracings against flanges, it could be shown that the two sides of one handle differed from each other but were identical with the corresponding sides of the other handle. This implied that both handles were made from a single pattern by casting.

Figure 1 shows the silhouette obtained by using a point source light and sensitized paper to make a shadowgraph. Dimensions have been added to it, showing that beneath the rim the silver is about one-half millimeter thick, whereas at the center of the bowl the silver is a whole millimeter thick. From these measurements it can be deduced that the bowl was made by the process of raising.
The upper edges of the outline, representing the sharp rim of the bowl, were covered in the actual object by a rim made of gilt brass. This had a rounded upper surface and a groove beneath to fit over the edge of the bowl. It was held in place by three tapered pins which were spaced around and passed through the rim and were bent over on the inside. The shape was determined with certainty by making an impression. A short length of the rim was laid in a channel, its ends stopped with wax. Ready-mixed fluid cold-setting silastomer was then poured into the space and allowed to cure. When hard the rubbery impression was slit and peeled away from channel and rim. Cross sections were then made by cutting thin slices from the impression. These were laid on a glass plate in the photographic enlarger and the image projected onto bromide paper. From the silhouette thus obtained the dimensions could be scaled off, once the outside dimensions of the actual metal rim had been measured at the position from which the impression had been taken.
The neck assembly consists of three components, namely, the upper ring-mounting, lying immediately beneath the bowl; the cylindrical collar; and the lower ring-mounting sitting neatly on the foot-cone' The three components have been decorated externally by the kerbschnitt technique (a type of decoration of interlacing notches, from the German kerben or indent, to notch, and "Schnitt," pattern). They fit very closely together: when properly assembled the three could be lifted together as one by grasping the upper ring-mounting alone.
Examination of inner surfaces of the neck assembly revealed that the components had been cast. A casting flaw and many blow holes are visible on these inner surfaces. There is also a tiny plug of copper on the upper ring-mounting that the bronze founder had inserted in order to fill a particularly deep blow hole. In fact, this plug was found to pass through the entire thickness of the metal to the other side, where it was obscured from casual inspection by the overall gilding. Clearly, this one of the three components has been cast and the other two show similar features.
These observations of the inner surfaces do not answer the question of how the outer decorative pattern was made. It could have been cast or it could have been punched or chiseled. This problem was solved by examining the structure of the metal of one of the components. Preparation of a special taper section by metallographic methods was found to be unnecessary because an area from which gilding had been lost some time ago was discovered on the basket weave on the collar.
From this spot the corrosion products that had formed during the centuries were carefully thinned by mechanical means and the final traces obscuring the metal were removed by a gentle chemical etching reagent. This process revealed a ladder-like pattern that represents the dendritic structure of cast metal. Because the straight lines of the dendrites pass up to the surface without deformation, it is difficult to believe that the metal could have been either punched or chiseled. A chisel could scarcely have failed to deform the dendrites near the surface. Quite clearly here was a pattern that had been cast into the surface and, at least at the spot examined, had suffered a minimum of subsequent correction.

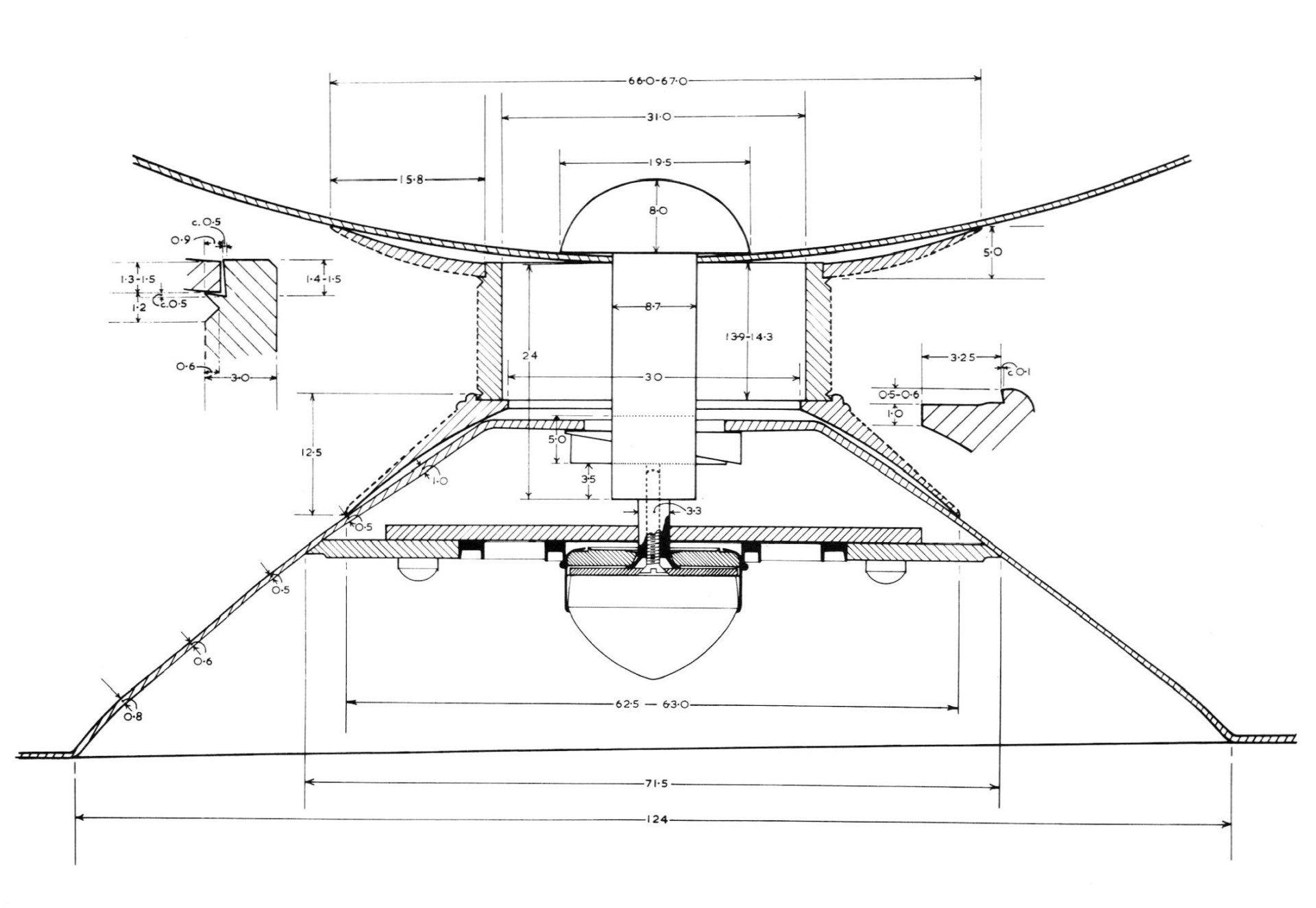
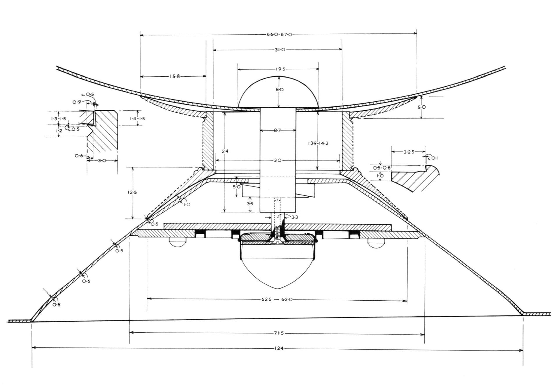
Next let us consider in the drawing, figure 2, the silver foot-cone that supported the neck. Notice particularly the size of the aperture in the flat top of the foot-cone. In the plane of the drawing the foot-cone does not touch the bolt anywhere, but in a plane a few millimeters behind this the aperture fits the bolt closely. The bolt has a rounded head that lies inside the bowl and has been gilded. It protrudes downward from beneath the bowl and holds all of the various components together. Dunraven stated that the chalice was fastened together by an iron bolt "which secured all together." The bolt actually found was made of copper, not iron. It was square in section with a tubular extension at one end and a rectangular slot passing through the copper that could serve as a key-way. Seen from above, the aperture in the flat top of the foot-cone was square, fitting closely against the bolt with additional slots cut on two opposite sides.
Although the copper bolt observed was not the iron bolt noted by Dunraven, an iron key was found that actually passed through the slot in the copper bolt and lay in the two additional slots found cut across the central square. The iron key lay there quite loose and served no useful purpose whatever. It was deduced that this was not the original key. Confirmation hinged on the fact that if the original key had been made of iron it should have rusted extensively because it would have lain underground in contact with a nobler metal, silver or copper, for over 1000 years. The product of corrosion would have been iron oxide, of greater volume than the iron. This should have resulted in expansion of the key against the top of the foot-cone. Some evidence of such an expansion might have been preserved as a deformation of the silver at areas of contact with the key.
The evidence was provided by projecting a grid pattern obliquely on the top of the foot-cone. The curves of the shadows cast by the grid indicated quite clearly that the slightly concave top has been deformed along the axis of the two side slots in which the iron key was discovered lying loose. It was also observed, in confirmation of this finding, that the whole foot-cone had been distorted slightly along this same axis.
It was next argued that Johnson would have had to break away the original corroded iron key in order to dismantle the chalice and that when during reassembly he came to insert a replacement, the key actually found there, he would have been unable to do so because of the unsuitable simple shape he had given to it. Then, in the last-minute flurry to get it assembled in time for collection he had cut out the side slots in order to admit the key. This was another theory for which confirmation had to be sought.
On the axis of the side slots, at the right-hand side, is a rather ragged scratch line. It is believed that this was made at the time when Johnson was struggling to insert his key. The key slid down the side of the foot-cone, marking it because of a rough corner at its rear edge, and was then wiggled side to side in an endeavor to force it further. The impossibility of inserting such a key was checked by making a key and attempting to insert it. The fact that this experiment was made may suggest that the test caused the mark. Actually, photographs made of the foot-cone before the time of the theory revealed the mark already present, although it had not been noticed at that time.
Let us turn to the drawing, figure 2, examining now the under-foot mounting in which the central crystal was set. Although this mounting was decorative it served to hide the central fixing device and also served a structural purpose: it centralized the bolt on the axis of the foot-cone and made the whole structure rigid. The mount for the crystal itself is held against the back plate by means of the so-called catch disc (figure 3). Looking outward along any radius of the mounting, a number of features can be observed. First there is a gilt silver channel which contained fragments of malachite and amber. Outside the channel lies a circle of gold filigree interlace, zoomorphic in style. Outside this again lies another channel, silver-gilt, now empty. Beyond this is a double feature: a gilt bronze circle that contains five studs and an outer circle of gilt bronze interlace. The various circles can also be seen in figure 3.

The central catch-disc, when removed from behind the crystal, had exactly the appearance of having come from a modern clock: its back had been lathe-turned. The problem was to decide whether this disc was indeed a modern introduction or whether it was the original ancient catch-disc.
One method of examination involved making a minute metallographic cross section. The cross section reveals two thin broken white lines on the two surfaces of the disc. The lines represent gilding about .002mm thick. It is believed that this gilding was applied at the time of Johnson's restoration because similarly thin gilding has been observed elsewhere on the chalice. This thin gilding was absent from the lathe-turned surfaces of the disc. From this it may be deduced that the lathe turning followed gilding.
The metallographic section, viewed at a magnification of 50 diameters, contains numerous nonmetallic inclusions. This suggests that the metal is ancient. It therefore appears probable that the disc was the original catch-disc, regilded by Johnson and altered at the last moment in order to allow the crystal to be fitted securely into its mount.
Now let us turn our attention to figure 2 again, in order to consider some evidence that tends to suggest that the original intention of the designer of the chalice was frustrated during actual construction. Considering the under-foot mounting as it lies within the foot-cone, it will be noticed that by raising it through a distance of about 3mm it will lie neatly against the end of the solid bolt. This position would provide a much more rigid support than does the actual position in which it was found—part way up the thin tubular extension to the bolt. Furthermore, by raising this disc-shaped mounting by 3mm its edge would seat on the inside of the cone exactly level with the lower edge of the lower ring-mounting, which has already been noticed as the only portion of this mounting to make firm contact with the foot-cone. The disc can be reduced to the diameter needed for this arrangement, exactly, merely by taking away completely the outer element of ornament—the narrow outer interlace pattern that was mentioned above. In this new arrangement, the foot-cone would be clamped between a solid neck-mounting of cast bronze and a solid under-foot disc of cast bronze. The disc would be mounted very securely on the end of the stout solid copper bolt and the bolt would be located centrally in the strongest part of the foot-cone in a close-fitting square aperture. This arrangement could provide a very strong structure through which the bolt passes axially. There should have been no need for the mass of lead that was cast into the neck because a workman found himself unable to maintain the bolt in an axial position in the assembly. This and other evidence indicates that the designer of the chalice was much in advance of the means of construction that were available.
When the chalice was finally reassembled at the British Museum, the lead which, corroding, had endangered the security of the assembly was taken out of the neck and replaced by a spacer made of polymethyl methacrylate. This is obviously a 20th-century fitting and could not be mistaken at some date in the future for work of the 8th or 9th-century. An iron key was not replaced through the bolt because experiment had shown that one long enough to be secure beneath the slotted foot-cone could not be inserted. Instead a pair of brass wedges were inserted. These ensured that the bolt remained perpendicular to the flat top of the foot-cone. Instead of allowing the whole weight of the under-foot mounting to be suspended on the two small tags of metal, an 8 B.A. brass screw was inserted and a substantial brass disc was added beneath the crystal in order to support the load. The one completely detached tag was refitted with expoxy resin.
The various decorative plates on the underside of the flange of the foot-cone, include one of silver, one of copper and another made of woven wire. A combination of such plates made up the whole decorative scheme. The silver plate was made of very thin silver, embossed into a pattern, supposedly, by the "pressblech" process, in which the silver was beaten down against a shaped die. Evidence was found that the four plates of silver had indeed been made in this manner. Of the four plates, all have patterns that are identical in shape, except the corner of one plate, on which a second misplaced impression of the pattern appeared, perhaps because the workman had mis-struck on the first occasion.
Next let us consider the panels beneath the foot made of woven wire. The upper panel has a square pattern and the lower one has a herringbone pattern. It will be seen when the same panels are turned over that the upper panel now has the herringbone pattern and the lower panel has a similar but rather rounded pattern. In the final reassembly the sides to be exposed were selected so that both of them would exhibit the herringbone pattern. Photographs made while the panels rested on an illuminated sheet of translucent glass in order to remove distracting shadows indicate clearly that two different kinds of wire are present, one was made of silver and the other of bronze.

Figure 4 shows the assembly of the foot-girdles. Above the lower girdle is shown a panel about to drop into place. A tiny flange had been formed on its two ends so that it could not drop quite through. Above lies a ring of lead and then the flange of the foot-cone. The upper girdle lies around the flange. It is pierced by apertures for eight square studs and for eight intervening panels, of which four remain. These panels were made of cast bronze with openwork patterns that were gilded. They were backed with plates of mica, presumably with the object of making the panels gleam but in fact to little practical effect. The holes that are visible here through the apertures that lack panels were of some interest. They were quite large, about 2mm in diameter. They did not lie on the exact center line of the panel apertures. In contrast the hole shown at four o'clock, at the square aperture for a stud, is different in size from the others and lies exactly in the center of the square aperture. In fact, there were eight of these smaller holes set on a circle of large radius, and there are eight of the 2mm holes set on a circle of smaller radius.
Next let us turn back for a moment to figure 4 and examine the arrangement of the girdles above and below the flange of the foot-cone. This had presented a problem ever since the foot was dismantled. At that time it was discovered that the various components had been tacked together and onto a flat lead ring, which had been incorporated into the foot assembly, by means of lead-tin solder. The presence of this lead ring was not an essential feature of the design. It should have been quite unnecessary and probably had not been intended by the original designer. He probably intended to rivet the lower studs directly onto the lower foot-girdle through the small holes made for this purpose on the circle of larger radius. The upper studs would have been riveted to the square back plates that appear just beneath them in figure 4. These plates would have served as flanges to prevent the studs from leaving the apertures in the upper foot-girdle, through which they protruded. This was a general principle of the design. All the panels had flanges of corresponding purpose. He probably intended that the two girdles would be held together above and below the foot-cone flange by soldering along their outer edges. In this way they would secure the studs and panels.
Nevertheless, Dunraven's account refers to "plates of lead" in the foot—not to a single ring of lead such as was found but to multiple plates of lead. It seems likely that the designer's intentions had been frustrated by lack of skill on the part of the worker. He had had to insert lead packing plates into the foot because he had been unable to make his foot-girdles lie flat and sufficiently closely against the flange of the foot-cone to hold the various panels securely in position. When Johnson carried out his restoration he in turn made a whole ring instead of separate plates, and he tacked all his panels on to it by means of lead-tin solder.

Next let us pass to the bowl girdle, the circle of panels below the rim. It consists of an openwork silver frame passing around the bowl inside the handles. It is pierced alternately with circles for the studs to protrude through and with long apertures to display the panels.
In the upper length of a short portion of the girdle there is, to the right of the left-hand stud, a length of inserted silver that is very much whiter than neighboring metal. When seen from the back it is clear that two pieces have been soldered into place with hard solder. The panels that were set in the long apertures in the girdle, consisted of three types: zoomorphic, ornithomorphic and knot-work. The zoomorphic panel shown in figure 5 was made up in three layers, first the lines of the design ridged up in gold in the pressblech manner with the intervening background cut away; second, lying along the top of the ridges, soldered on, was a treble layer of beaded wires, only the top row being visible in the photograph at first sight but all three being clearly present on close examination; third, backing the openwork pattern was a plate of gilt copper, taken away for the purpose of making this photograph. Around the panel, beyond the bordering beaded wire, was left a narrow flange that would have prevented the panel from falling through the containing aperture in the original design.
Next let us consider the two roundels, which are located on the bowl between the handles. Thick silver has been formed into the eight-lobed open frame of the roundel. Within each aperture is a gold panel decorated with beaded wire and also faced with a decorative surface.
Around the periphery of the roundel are four studs. The two along a horizontal line are made of blue glass and the two along a vertical line are made of red material that in fact now consists of wax. According to Dunraven this was originally amber, but no trace of amber was found. These four studs hide the four rivets that attach the roundel to the bowl. One of these rivets, which is typical of all, is hollow and was made by folding copper sheet into a tube. It was then soldered to the head of the rivet, a tiny convex disc made of silver, in order to blend visually with the interior surface of the silver bowl on which it lay.

Next let us examine the handle escutcheons which provided some features of interest (figure 6). The design is very elegant. It incorporates three subconical studs. The lowest stud has a central area decorated with gold granulation. Around its base is a partitioned ring filled now with malachite and originally decorated with roughly plano-convex cylindrical amber beads set upon the malachite.
In the lower foot girdle there were eight studs of almost rectangular shape that supported the whole weight of the chalice on the table and were in consequence very much scratched. They were made of pale blue transparent material. One of the studs was missing and a backing of patterned silver foil was exposed. We wanted to discover whether all of the studs were backed by similar silver foil. In order to establish this and to discover the pattern of the foil it became necessary to take photographs through the almost-opaque scratched surface of each stud. To do this the stud was coated with an oil of suitable refractive index that would fill the scratches and give them optical properties similar to those of the mass of the material. Bubbles in the stud provide clear evidence that the stud was made of glass and not of semiprecious stone.

In figure 7 all of the physical data concerning the silver grille and the glass backing of a stud in the bowl girdle have been incorporated in a single dimensioned drawing. It shows a cross section through the stud accompanied by an exploded drawing that indicated how the panels and panel back plates were assembled in the bowl girdle. The mounted stud B was passed from the front into the hole in the girdle C. A lead plug F in the cross-sectional drawing was pushed into the back of the mount and was expanded by a series of punchings around its periphery. The adjacent panels with back plates D and E were dropped into place in the apertures in the girdle and the slit edges of the stud mount were turned over to hold them in position. The drawing shows the condition of the girdle as received. It would have been more in accordance with the concept of the design if the edge of the back plate E, cut back by someone—possibly Johnson—had been left equal in length with the panel D and the two components had then been held together by the turned-over edge of the stud mount.

Figure 8 was made to illustrate the construction details of the subconical stud pictured on the handle escutcheon in figure 6. Beneath the stud can be seen three cardboard packing pieces. These pieces are part of a photographic print, possibly from the early 20th century, that must have been inserted at the time of some earlier examination.
The channel around the stud contained residues of green material that presented a problem. X-ray diffraction analysis indicated that it was made of malachite, but the shape of the filling indicated that it had been inserted while it was of a pasty consistency. If this were the case then the malachite may have been used in powder form ground up with a medium such as glue and inserted into the mounting to serve as a temporary packing and adhesive for the amber inlay. The fragments of amber inlay still remaining are plano-convex and are adequately held in position between the walls of the channel, under constraint by the lower beaded wire on the stud mount. It is suggested that the malachite mixture was applied as a temporary adhesive until such time as the stud mount should have been inserted as the final fixing device.
The problem of the arrangement of the 10 decorative panels in the bowl girdle may next be considered briefly. Their arrangement as received, unsymmetrical on both sides, had always worried the stylistic experts because it was said to be "esthetically impossible" for the Irish craftsman. Several symmetrical arrangements were proposed based on esthetic reasoning and on the existence of several sequences of numbers scratched on the backs of the panels. Other steps were taken to discover the original arrangement of the panels. A photograph by Margaret Stokes and a drawing by Johnson were examined. Each provided a different arrangement. The arrangement as received in the laboratory was not satisfactory because it was obvious that some of the panels were not fit into the proper place in the girdle.

The next attempt to resolve the difficulty ignored history: the actual physical fit of the various panels in the apertures in the bowl girdle was examined. About a hundred trials were made of the fit of each panel into every aperture, extending over several days. The results were categorized in lists. They revealed that the beautiful symmetrical arrangement was quite impossible in practice because all of the necessary panels just could not be inserted mechanically into the required apertures. It also showed that Johnson's arrangement as used in the representation was not mechanically feasible in the present condition of the girdle. The result also showed that even the unsatisfactory arrangement in the chalice as received had only become possible because Johnson had forced two panels into place. From the new data it was discovered that there were two arrangements of panels that were physically possible and that contained maximum symmetry. Agreement on one of these was eventually reached and the panels were replaced.
The chalice is shown above as it appeared after restoration.
This article is a condensation of a paper which appeared in a book entitled Application of Science in Examination of Works of Art, published by the Museum of Fine Arts, Boston in 1973. The author undertook his investigation of this chalice while employed at the British Museum Research Laboratory. It is reprinted here with kind permission of the Trustees of the British Museum as well as that of the Museum of Fine Arts, Boston, and the Royal Irish Academy, Dublin. Metalsmith would like to thank Ken Coleman for his sensitive job in condensing the original article, and the author, Robert M. Organ, for his cooperation in checking over the manuscript.

The All-In-One Jewelry Making Solution At Your Fingertips
When you join the Ganoksin community, you get the tools you need to take your work to the next level.









